About Parktown Residence
Parktown Residence is a thoughtfully designed residential development that harmoniously blends urban living with the tranquility of nature. Situated on Tampines street 62 in District 18, this nature-inspired sanctuary spans an impressive 50,700 sqm, offering 1,193 meticulously crafted homes ranging from 1- to 5-bedroom apartments. This vibrant community reflects the essence of Next Generation Living by seamlessly integrating lifestyle, connectivity, and sustainability.
Key Features:
- Diverse Living Options: Choose from 1- to 5-bedroom apartments, each thoughtfully designed to meet the needs of singles, couples, and families.
- Unmatched Accessibility: Direct access to key amenities, including a Retail Mall, MRT Station, Bus Interchange, Green Boulevard, Hawker Centre, and Community Club.
- Nature-Inspired Design: The development mirrors Tampines’ natural landscape, creating a tranquil environment amidst lush greenery.
| Developer |
UOL Group Limited Singapore Land Group Capitaland Development |
| District | 18 |
| Location | Tampines Street 62 |
| Tenure | 99 Years |
| Total Site Area | 50,679.7 sqm |
| No. of units | 1,193 |
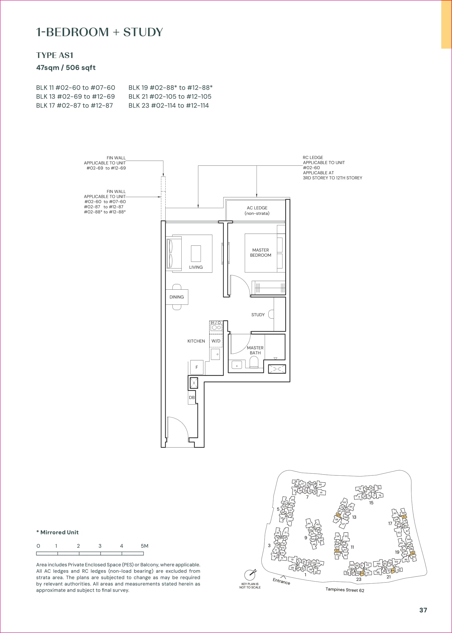
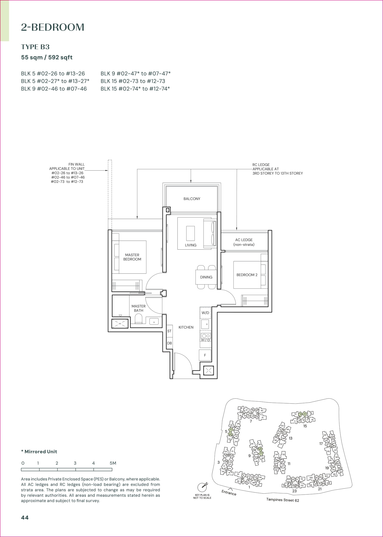
Unit Mix and Size

Location

Parktown is located along Tampines Street 62, in District 18. It is accessible to Tampines North MRT and Upcoming Cross Island Line. For residents who drive, the site is well connected to other parts of Singapore via Tampines Expressway (TPE) and Pan-Island Expressway (PIE) and East Coast Parkway (ECP)
REGISTER YOUR INTEREST TO DOWNLOAD MORE FLOORPLANS
Disclaimer
The information provided on the website is for general informational purposes only. While we strive to ensure accuracy, we make no guarantees regarding the completeness or reliability of the content. Any reliance on this information is at your own risk. We are not liable for any losses or damages arising from your use of this site or its content.
Privacy Policy
Your privacy is important to us. We collect personal information you provide through our contact form, such as your name and email address. This information is used solely to respond to your inquiries and enhance your experience. We do not sell or share your information with third parties without your consent. We take security seriously and implement measures to protect your data. By using our site, you consent to our privacy practices.
REGISTER YOUR INTEREST
By Appointment Only


